Hip to Gable Loft Conversions: The Benefits & Considerations

Is your loft a hoarder’s heaven, full of long-forgotten items collecting dust?
Perhaps you’re seeking additional living space?
Maybe it’s time to maximise the potential of your home with a loft conversion…
There are many loft conversion types to suit the needs of every home and its owners — but which type is the right fit for you?
A hip to gable conversion is a unique way of investing in your home and making the most of your space.
What is a hip to gable loft conversion?
A hip to gable loft conversion alters a roof by extending one of its sides vertically, adding to the slopes already present at the front and back of the house.
To achieve this conversion, the bottom of the side slope is built upwards, elongating the current ridge to form a gable end. This transformation significantly expands the available loft area, usually providing additional room for a new staircase.
The hip to gable design is usually achievable on most properties with the exception of mid-terraced houses that lack a hip end roof structure.
What are the benefits of a hip to gable loft conversion?
Is your house structured with a hipped roof, resulting in limited loft space?
A lot of properties, especially semi-detached houses and bungalows constructed between the 1930s and 1950s, have more intricate pyramid-shaped roofs featuring added slopes rather than gable end walls. The hipped roof design often reduces usable floor space – this is where the hip to gable loft conversion can be of huge benefit.
Pairing this type of loft conversion this with a dormer extension could allow extra space for a bedroom and bathroom, significantly expanding the size of your home. This combination is particularly popular in areas like London, where building out is far more challenging than extending above. Additionally, hip to gable conversions seamlessly integrate with your home’s aesthetics, ensuring a natural continuation of your home.
This type of loft conversion not only increases your living space but can also boost your home’s value by up to 20%. If you are thinking about selling your home, or the time arrives down the line, this unique addition will undoubtedly attract greater interest and escalate its value.
Do you need planning permission for a hip to gable loft conversion?
If your property has permitted development rights, a hip to gable conversion is typically feasible under a Certificate of Lawfulness. If not, securing planning permission becomes necessary, meaning commencement of the project must wait until approval is granted. Following validation of your application by the council, work on the conversion can usually commence within a few weeks.
If you’re uncertain about whether your home has permitted development rights, take a look at our article where we break down planning permission requirements and the types of loft conversions that fall under permitted development.
A surveyor will also need to evaluate your property’s suitability for a hip to gable conversion and ensure compliance with relevant building and planning regulations throughout the loft conversion process. Additionally, if your property is attached to a neighbouring property, adhering to the Party Wall Act 1996 mandates informing and obtaining consent from neighbours before proceeding with the conversion work.
How long does a hip to gable loft conversion take to complete?
The duration of a hip to gable loft conversion can vary significantly based on various factors such as the size of the project and complexity of the design. That said, a hip to gable conversion is usually able to be completed in around 8 weeks. Larger or more intricate conversions could take longer, while smaller ones might finish sooner.
At The Loft Room, we will always consult with you ahead of commencing your project for a more accurate estimation based on its unique details.
What considerations should be taken for a hip to gable loft conversion?
Hip to gable conversions are a fantastic way to add headspace to bungalows, semi-detached and detached homes.
However, these types of conversions are not the cheapest option and are not possible on a mid-terraced home as they have no sloping side. In this case, it is worth considering other option. A rear dormer loft conversion in this instance may be a better fit for your home.
As well as ensuring the correct permissions have been obtained prior to commencing any work, as previously mentioned, you should consider the overall cost of the project. Once you have all the relevant authorisation for the loft conversion in place, get quotes for the build and decoration of the converted space and ensure you have the right amount budgeted and set aside for the project.
Popular features to include on your hip to gable loft conversion
When it comes to the design and features you can include on a hip to gable conversion, there are many options available to you.
If you’re looking to draw natural light into your converted loft area, incorporating Velux windows into the loft design is a great way of achieving this. A Juliet balcony is another way of brightening up the area and are particularly popular if you have beautiful views to look out onto.
If you are converting your loft to incorporate an additional bedroom, adding an ensuite bathroom is a feature often opted for on hip to gable conversions. This not only makes for a better quality of living but will also add extra value to your property with the addition of another bathroom space.
If storage space is a priority, creating built in storage under the eaves in the loft is a popular option. A lot of unconverted lofts are used to store belongings that aren’t used day-to-day, and this addition will aid in having somewhere to store those not-so-often-used items.
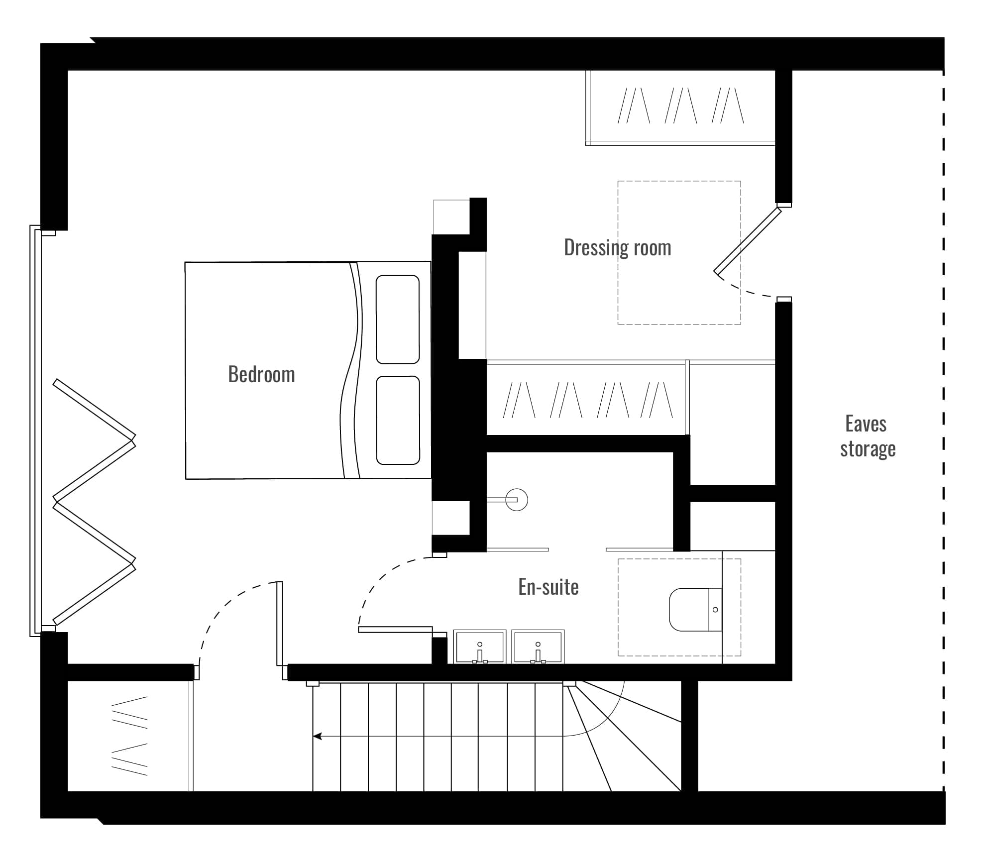
Example of Hip-to-Gable Floor Plan
Debs & David’s hip to gable loft conversion beautifully demonstrates the untapped potential of an unused hip roof. What was once a dark, cramped storage area has been transformed into a bright and luxurious master suite, complete with an ensuite bathroom and a spacious dressing room. The floor plan highlights clever design features, including bifold doors, custom eaves storage, and built-in wardrobes in the dressing area, making the most of every inch of space. See the finished result of the Debs & David’s loft project here.
What other loft conversion options are there?
If a hip to gable loft conversion isn’t feasible for you, or you want to explore other loft types, there are plenty of other conversion options available that may be suitable for your needs. Popular alternatives include Mansard loft conversions, L-shaped loft conversions and Rear dormer loft conversions.
If you’re not sure which loft type is suitable for your home or you want to discuss your options, our team of loft conversion specialists are always happy to chat through your plans and organise a visit.
At The Loft Room, our extensive expertise lies in crafting beautiful, bespoke hip to gable loft conversions that have breathed a new lease of life into our customers’ homes. With no shortcuts taken and a smooth, simple process, we’re able to turn your dream conversion into a reality.
Does a hip to gable conversion sound like the right option for your home? Get in touch with our friendly team of specialists at The Loft Room today on 0800 002 9291 or email info@the-loftroom.com.
Related Loft Types information
All You Need to Know About Double Dormer Loft Conversions
Loft conversions have become one of the most popular ways to expand usable space in UK homes, especially in areas where moving or extending outwards isn't feasible. One increasingly [...]
Your Ultimate Guide to Rear Dormer Loft Conversions
As the cost-of-living crisis and soaring mortgage rates in the UK continues to pose challenges in 2023, homeowners are seeking alternative solutions to accommodate their growing needs without the [...]
Pitched Dormer Loft Conversion Guide – Everything You Need to Know
Thinking of transforming your loft into a functional and stylish living space? A pitched dormer loft conversion could be the perfect solution. This timeless option not only enhances your [...]





